Все строящиеся дома и готовые новостройки
Москвы и Московской области
Москва и МО

Помещение 95 м2, 1/10 этаж,
Ленинский, д. 12

390 000 руб./мес.

  • Москва г, Ленинский пр-кт, д. 12

Основные характеристики

  • Этаж 1 этаж 10-этажного дома
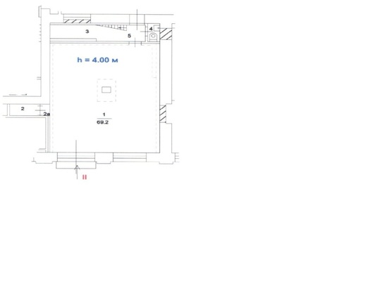
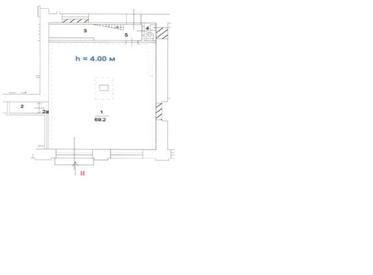
  • Общая площадь 95 м²
  • Назначение помещения коммерческая

Дополнительная информация

  • Предоплата 100 %
  • Источник через агента
  • Залог да
  • Наличие парковки да
  • Высота потолков, м 4

Инфраструктура

Описание

Сдается помещение свободного назначения площадью 95 кв. м формата street retail, торговое. Планировка: 1 этаж- 69 кв. м + антресоль - 4,9 кв. м. Первая линия, отдельный вход с Ленинского проспекта. Дизайнерский ремонт. Витринное остекление, вывеска. Отдельный вход с улицы и со двора. Планировка свободная. Потолки 4 м, Мощность 30 КВт. УСН. Рассмотрим все предложения.

Актуальные предложения

390 000 руб./мес. Помещение 95 м2, 1/10 этаж, Ленинский, д. 12
Позвоните мне