Все строящиеся дома и готовые новостройки
Москвы и Московской области
Москва и МО

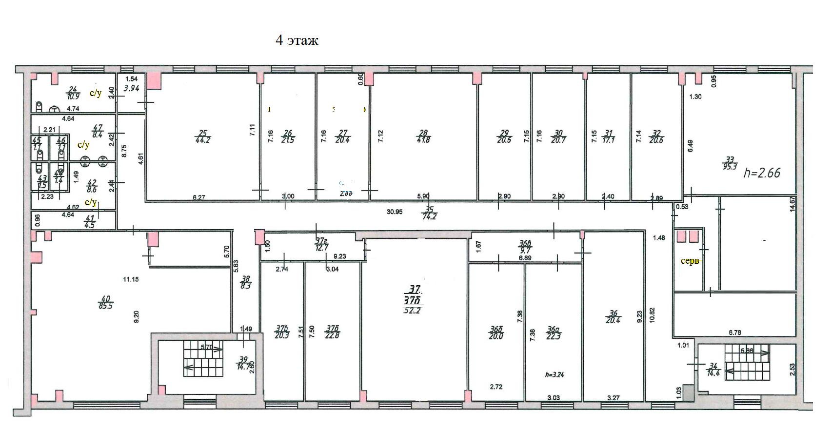
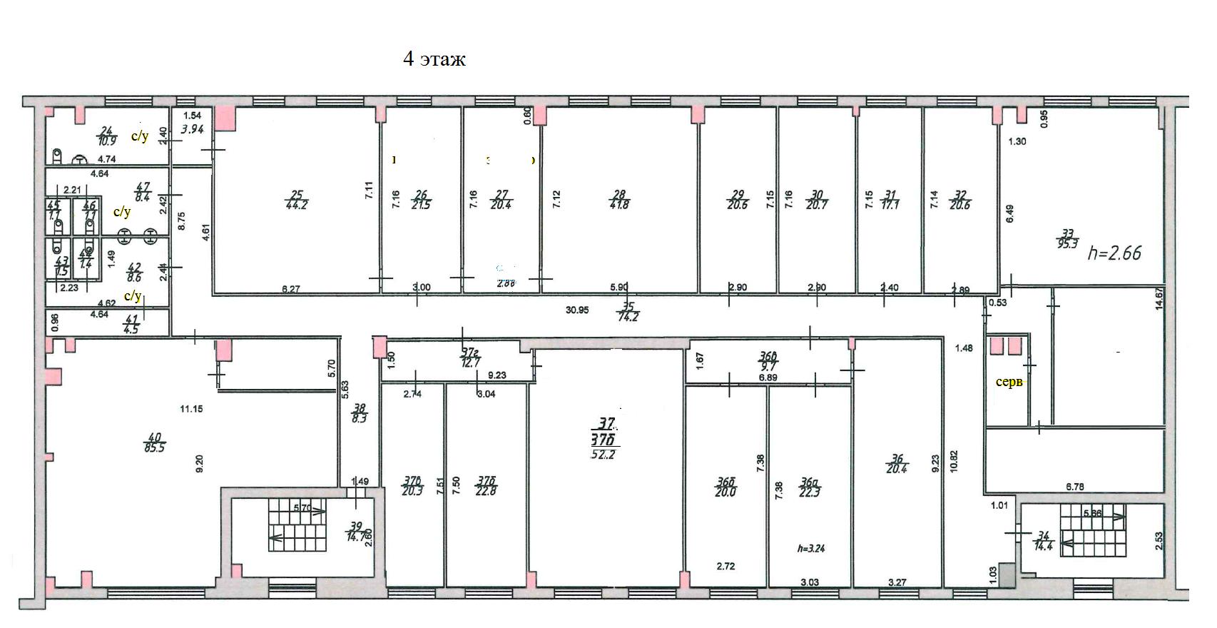
Помещение 683 м2, 4/5 этаж,
40-я линия улица, д.5

479 000 руб./мес.

  • Москва, 40-я линия улица, д.5

Основные характеристики

  • Этаж 4 этаж 5-этажного дома
  • Общая площадь 683 м²
  • Назначение помещения офисное помещение

Дополнительная информация

  • Предоплата 100 %
  • Источник напрямую
  • Ремонт да
  • Наличие интернета да
  • Вид из окон во двор и на улицу
  • Покрытие пола ламинат
  • Высота потолков, м 3

Инфраструктура

Описание

Прямая аренда 23 кабинета на 4 этаже, без комиссий от собственника. В стоимость аренды включены:физическая охрана здания, пользование парковкой, ежедневная уборка мест общего пользования. Есть отдельная комната для серверной (установлен сплит), заведена оптика от оператора связи скорость до 10 Гбит/с, установлен шкаф 42U с разводкой сети по кабинетам, в каждом кабинете сеть рассчитана от 6 до 20 раб мест не требуется доп вложений на организацию сети. Кабинеты: каб. дир. + отдельный с/у + скуд на вход, приемная, переговорная, кладовки, архивные и т.д. Во всех комнатах установлены: светодиодное освещение, сплит системы, пожарная система оповещения и т.д. См. планировку. Инфраструктура рядом: автобусная остановка, аптека, супермаркет и т.д. Скидка 50% на первый платеж. [#7962361#]

Актуальные предложения

479 000 руб./мес. Помещение 683 м2, 4/5 этаж, 40-я линия улица, д.5
Позвоните мне