Все строящиеся дома и готовые новостройки
Москвы и Московской области
Москва и МО

Помещение 43 м2, 1/3 этаж,
Петровская улица, д.43

53 750 руб./мес.

  • Москва, Петровская улица, д.43

Основные характеристики

  • Этаж 1 этаж 3-этажного дома
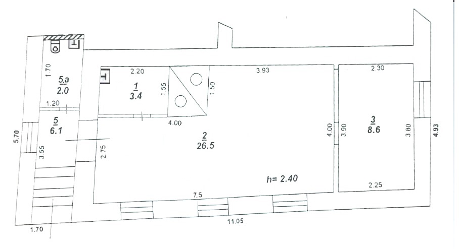
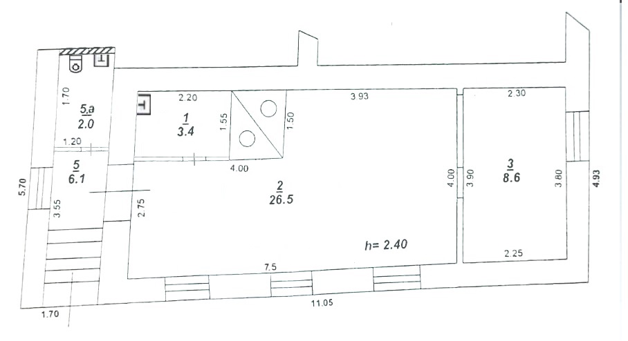
  • Общая площадь 43 м²
  • Назначение помещения офисное помещение

Дополнительная информация

  • Источник напрямую
  • Ремонт да
  • Наличие интернета да
  • Вид из окон на улицу

Инфраструктура

Описание

Прямая аренда офиса от собственника 43м2 в центре города с развитой инфраструктурой. В стоимость аренды включены все КУ, кроме электроэнергии. Помещение светлое, теплое, после капитального ремонта, первая сдача. Отдельный вход с улицы, в помещении 5 комнат, 2 мокрые точки (с/у, кухня, можно добавить 3 точку), установлен сплит, видеонаблюдение, пожарная система оповещения, заведена оптика для интернет. Звоните, отвечу на все вопросы, на сообщения отвечаю редко. [#7962362#]

Актуальные предложения

53 750 руб./мес. Помещение 43 м2, 1/3 этаж, Петровская улица, д.43
Позвоните мне