Все строящиеся дома и готовые новостройки
Москвы и Московской области
Москва и МО

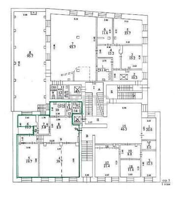
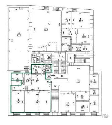
Помещение 111 м2, 1/6 этаж,
Знаменка ул, 13 3

250 000 руб./мес.

  • Москва, Знаменка ул, 13 3

Основные характеристики

  • Этаж 1 этаж 6-этажного дома
  • Общая площадь 111.4 м²
  • Назначение помещения коммерческая

Дополнительная информация

  • Предоплата 100 %
  • Источник через агента
  • Наличие парковки да

Инфраструктура

Описание

<strong>БЕЗ КОМИССИИ! ПРЯМАЯ АРЕНДА!</strong>

<strong>Аренда нежилого помещения в центре Москвы.</strong>

<strong>Адрес:</strong> Москва, ул. Знаменка, д. 13, стр. 3.
<strong>Метро:</strong> Боровицкая / Библиотека им. Ленина / Арбатская — в шаговой доступности.

<strong>Площадь — 111,4 кв. м.</strong>
<strong>1 этаж административного здания.</strong>
Отдельный вход.

<strong>Планировка:</strong>
— 4 кабинета
— 2 помещения под хозяйственные нужды
— Санузел

<strong>Условия:</strong>
— НДС.
— Предоставляется юридический адрес.
— ИФНС №4.
— Парковка возможна — машиноместо предоставляется по отдельному договору аренды.

<strong>Инженерия и безопасность:</strong>
— Приточно-вытяжная вентиляция
— Отдельные кондиционеры в кабинетах
— Круглосуточная охрана
— Видеонаблюдение

<strong>Дополнительно:</strong>
— В здании расположен ресторан
— Возможна перепланировка (за исключением несущих стен)

<strong>Контакт: Евгений Р.</strong>

Актуальные предложения

250 000 руб./мес. Помещение 111 м2, 1/6 этаж, Знаменка ул, 13 3
Позвоните мне