Все строящиеся дома и готовые новостройки
Москвы и Московской области
Москва и МО

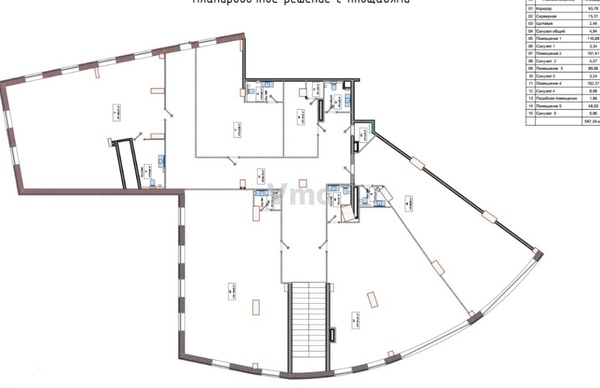
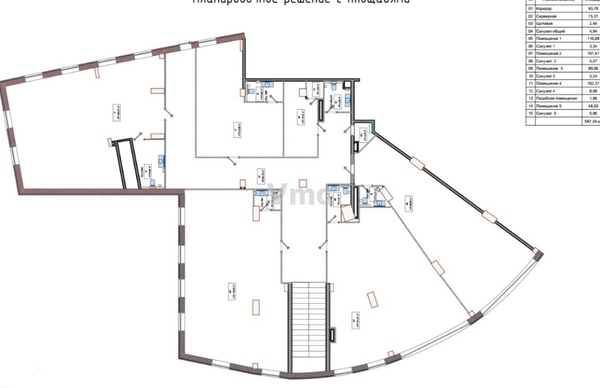
Помещение 600 м2, 1/2 этаж,
Нахимовский, д. 56

1 800 000 руб./мес.

  • Москва г, Нахимовский пр-кт, д. 56

Основные характеристики

  • Этаж 1 этаж 2-этажного дома
  • Общая площадь 600 м²
  • Назначение помещения коммерческая

Дополнительная информация

  • Предоплата 100 %
  • Источник через агента
  • Залог да
  • Наличие парковки да
  • Высота потолков, м 3.5

Инфраструктура

Описание

Помещение с отдельным входом с 1го этажа летница на 2й этаж в 2х этажной пристройке в ЖК, вывекса видна с улицы, с свежим качественным ремонтом.. под офис, магазин, шоурум, клинику общепит. В здании установлена эффективная приточно-вытяжная вентиляция для комфортной работы. Есть наземная и подземная парковка. Договор с собственником помещения. Без комиссии. Многоквартирный жилой комплекс расположен в шаговой доступности от метро. Удобная транспортная доступность. Парковка у здания за шлагбаумом. Кондиционирование: Сплит-системы. Безопасность: Круглосуточный доступ, Система пожаротушений, Видеонаблюдение. Парковка: Наземная. Описание помещения: Планировка: смешанная. Типовой ремонт.

Актуальные предложения

1 800 000 руб./мес. Помещение 600 м2, 1/2 этаж, Нахимовский, д. 56
Позвоните мне