Все строящиеся дома и готовые новостройки
Москвы и Московской области
Москва и МО

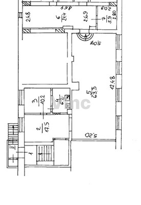
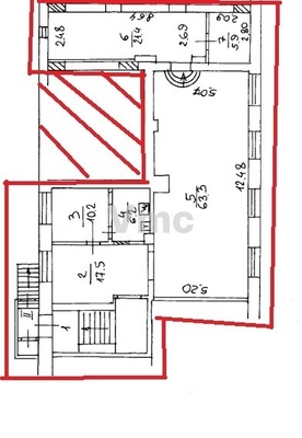
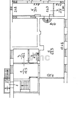
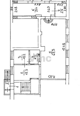
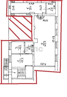
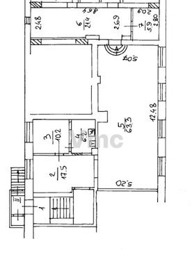
Помещение 150 м2, 1/5 этаж,
Дружинниковская ул, 13

300 000 руб./мес.

  • Москва, Дружинниковская ул, 13

Основные характеристики

  • Этаж 1 этаж 5-этажного дома
  • Общая площадь 150 м²
  • Назначение помещения коммерческая

Дополнительная информация

  • Предоплата 100 %
  • Источник через агента
  • Залог да
  • Наличие парковки да
  • Высота потолков, м 3.9

Инфраструктура

Описание

Прямая аренда. Без комисий. С ремонтом. фото по запросу. Предлагается помещение с отдельным входом со дворас окнами. Зальная планировка. Высокие потолки 3.9м. Дом на оживленном перекрестке в трех минутах от м Краснопресненская, окна выходят в две стороны двор и улица, на улицу можно делать вывеску. Долгое время был магазин ткани- раскрученое место. С ремонтом. высокие потолки 3 метра с окнами. Зальная планировка. мокрые точки. Санузел. кондиционирование. Доступ круглосуточно 24/7. Место под вывеску. В центре столицы, интенсивный трафик. В жилом доме.ремонт сделан. . Возможна гостевая парковка под клиента. Развитая инфраструктура. Рядом Элитные дома, офисы крупных компаний,. Назначение обсуждается.

Актуальные предложения

300 000 руб./мес. Помещение 150 м2, 1/5 этаж, Дружинниковская ул, 13
Позвоните мне