Все строящиеся дома и готовые новостройки
Москвы и Московской области
Москва и МО

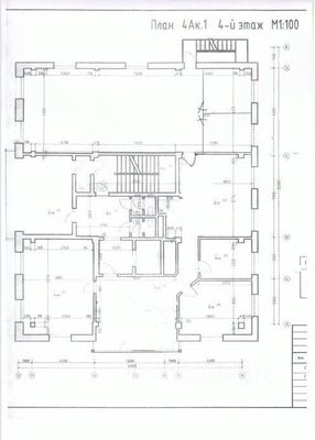
Помещение 300 м2, 4/7 этаж,
Образцова, д. 4А

875 000 руб./мес.

  • Москва г, Образцова ул, д. 4А

Основные характеристики

  • Этаж 4 этаж 7-этажного дома
  • Общая площадь 300 м²
  • Назначение помещения коммерческая

Дополнительная информация

  • Предоплата 100 %
  • Источник через агента
  • Залог да
  • Наличие парковки да
  • Высота потолков, м 3

Инфраструктура

Описание

Аренда офисного здания в районе Марьина Роща, СВАО. Шаговая доступность от станций метро Достоевская, Менделеевская, Новослободская. В 1 км съезд на ТТК, Садовое кольцо, Олимпийский проспект и Долгоруковскую улицу. Пятиэтажное здание общей площадью 1046м2 оснащено современными инженерными системами. Во всех помещениях выполнена качественная офисная отделка. Планировка смешанная с преобладанием открытых пространств с максимальным использованием арендуемых площадей. С комфортом разместиться порядка более ста сотрудников. С\\\\у на каждом этаже. Два независимых входа. Доступ 24/7. Долгосрочный договор аренды. В указанную цену включено 3 машиноместа. Звоните, показ в удобное время по предварительной договорённости. В цену включено: НДС 5%. Обеспечительный платеж 1 месяц. Характеристики здания: 7 этажей, особняк расположен на первой линии, техническое оснащение и управление климатом по требованиям A класса, 15 налоговая. Особняк оснащен пассажирским лифтом. Есть круглосуточная возможность работы, ресепшен, контроль доступа в здание, круглосуточная охрана, видеонаблюдение, наземный паркинг, подземный паркинг, гостевой паркинг. Предлагаем к аренде офис 300 кв. м на 4 этаже. Ваш офис в особняке Образцова может работать круглосуточно. Обратитесь за спецусловиями на аренду!

Актуальные предложения

875 000 руб./мес. Помещение 300 м2, 4/7 этаж, Образцова, д. 4А
Позвоните мне