Все строящиеся дома и готовые новостройки
Москвы и Московской области
Москва и МО

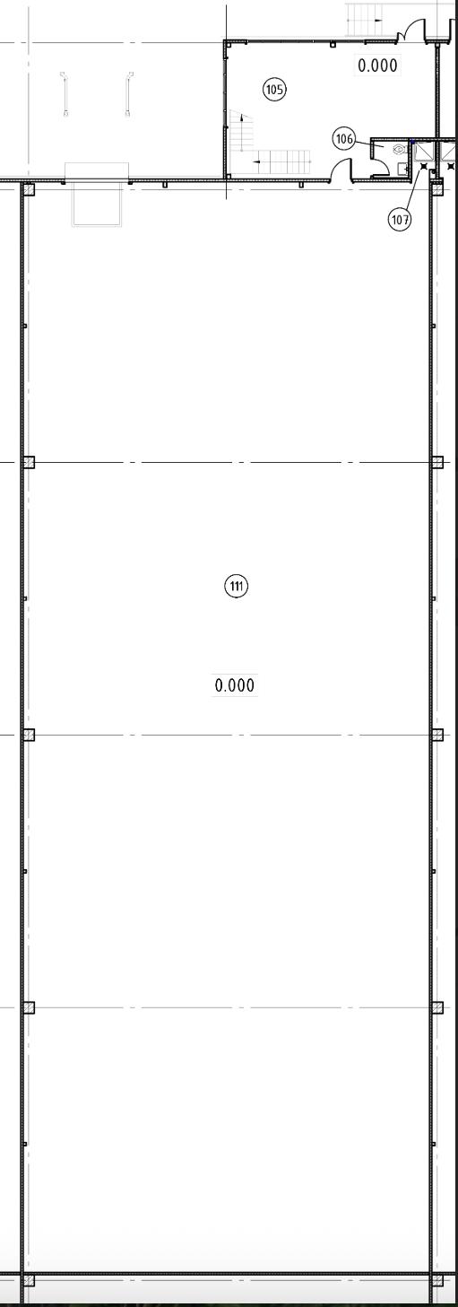
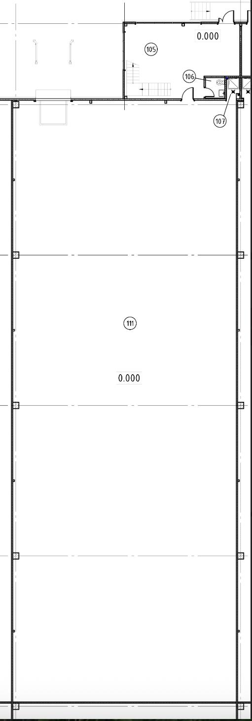
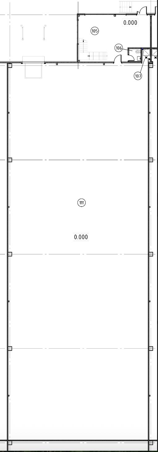
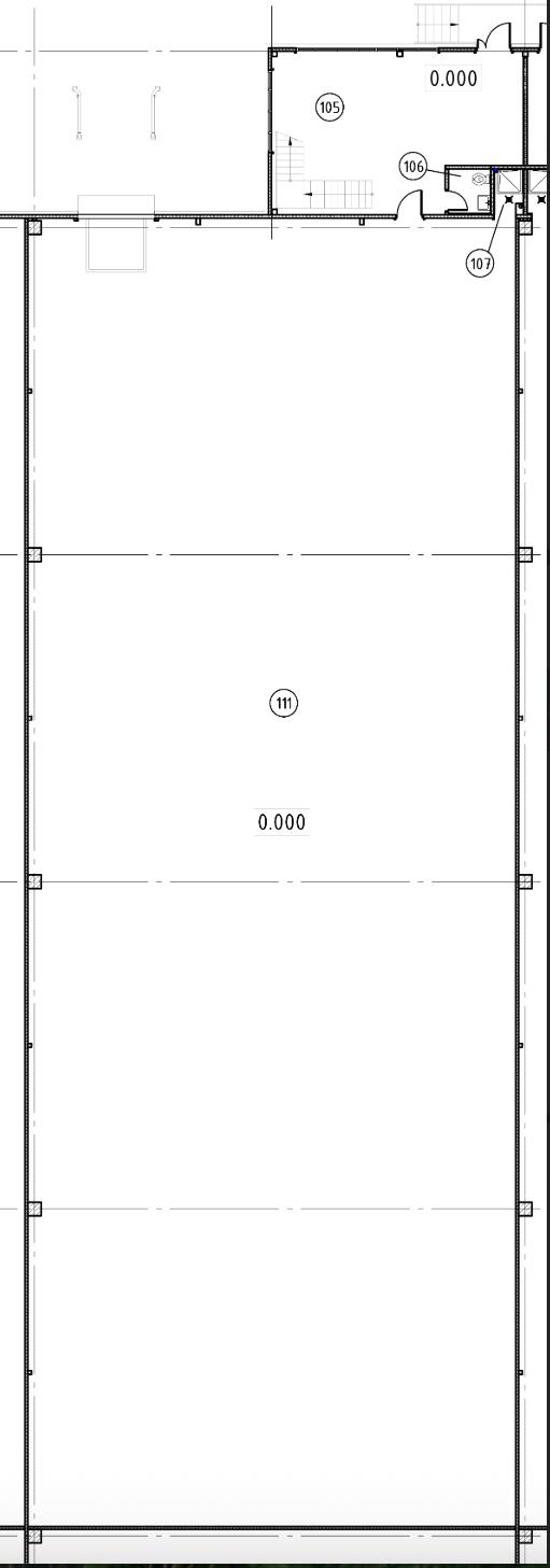
Помещение 969 м2, 1/2 этаж,
Коммунальная, д. 44

158 452 755 руб.

163 500 руб./м²
  • Московская обл, Коммунальная ул, д. 44

Основные характеристики

  • Этаж 1 этаж 2-этажного дома
  • Общая площадь 969.13 м²
  • Назначение помещения производственное помещение

Дополнительная информация

  • Источник напрямую
  • Ремонт да
  • Наличие интернета да
  • Высота потолков, м 8

Инфраструктура

Описание

Продается новое готовое к заезду производственно-складское помещение вблизи МКАД в промышленном парке INDUSTRIAL CITY -ICPARK Коледино. Планировочное решение включает в себя пространство для производства, склад или логистику 859,2 кв.м, а также офисную часть 109,93 кв.м. Объект расположен в южном направлении с выездом на Симферопольское шоссе (М-2). Расстояние от МКАД — 24 км. Координаты: 55.373194, 37.575127 Продажа осуществляется напрямую от собственника парка, что гарантирует отсутствие каких-либо комиссий и скрытых платежей! Формат Point. Блок D, Бокс 11. ОСНОВНЫЕ ХАРАКТЕРИСТИКИ: - Класс: A - Температура: Сухой склад - Автоматическая спринклерная система пожаротушения - Высота: 8 м - Нагрузка на пол: 5 т/кв.м - Высококачественные бетонные полы с антипылевым покрытием и упрочняющим слоем - Сетка колонн: 12x24 - Ворота: на нулевой отметке КОММУНИКАЦИИ: - Электричество: 25 кВт (возможно увеличение мощности) - Вентиляция: приточно-вытяжная - Водоснабжение, канализация - Индивидуальные приборы учета ИНФРАСТРУКТУРА: - Парковки для транспорта: для грузовых авто — 1 место, для легкового авто — 3 места - Доступ к производственно-складским помещениям 24/7 - Охраняемая территория - Видеонаблюдение - Скоростной интернет и телефония ДОПОЛНИТЕЛЬНО: - Собственная профессиональная управляющая компания - Клининг - Консьерж-сервис - Мобильное приложение - Маркетплейс услуг - Кафе на территории - Зоны отдыха и спортивные площадки Готовы предоставить подробную информацию и организовать просмотр! [#8075075#]

Актуальные предложения

158 452 755 руб. 163 500 руб./м² Помещение 969 м2, 1/2 этаж, Коммунальная, д. 44
Позвоните мне