Все строящиеся дома и готовые новостройки
Москвы и Московской области
Москва и МО

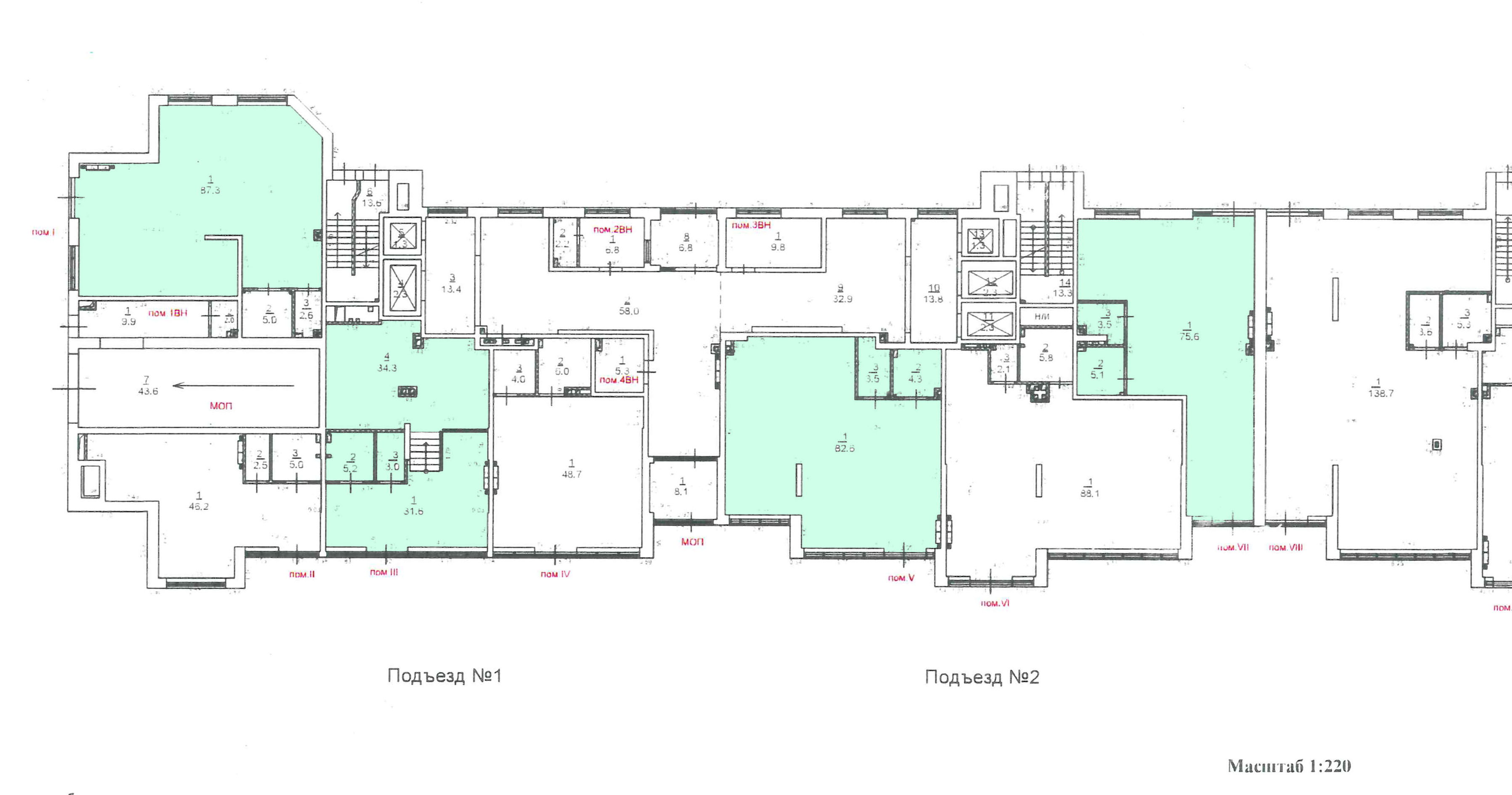
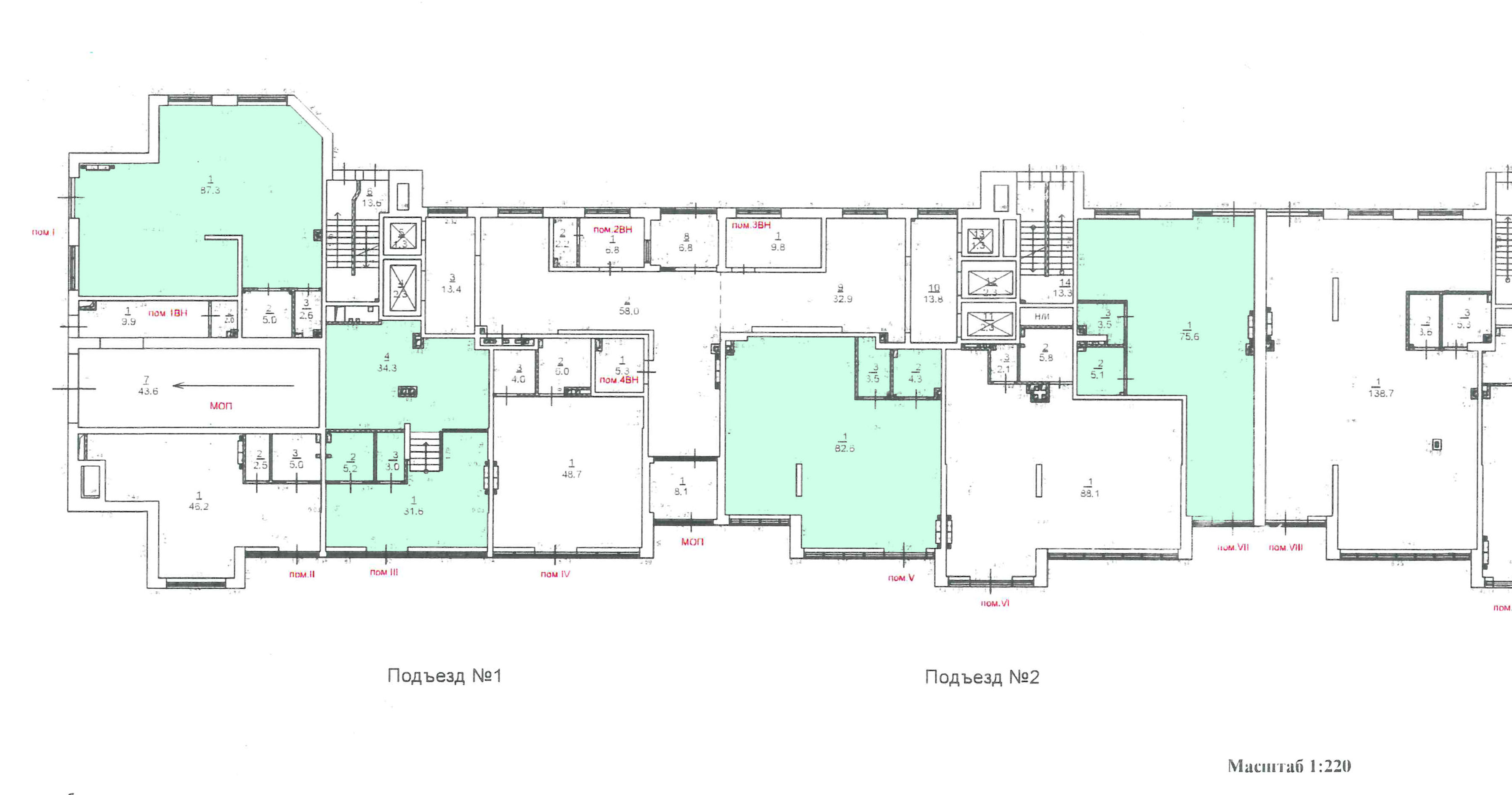
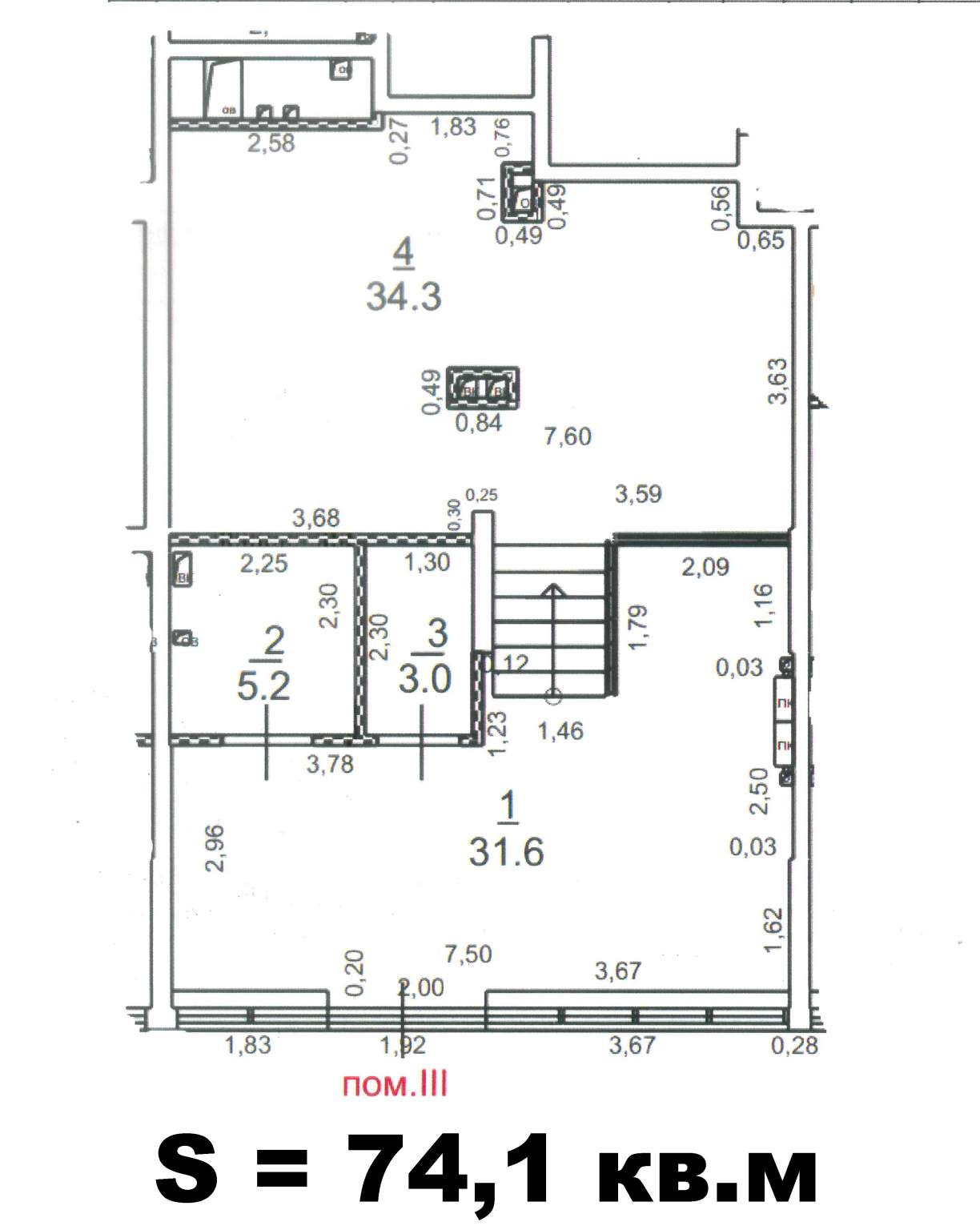
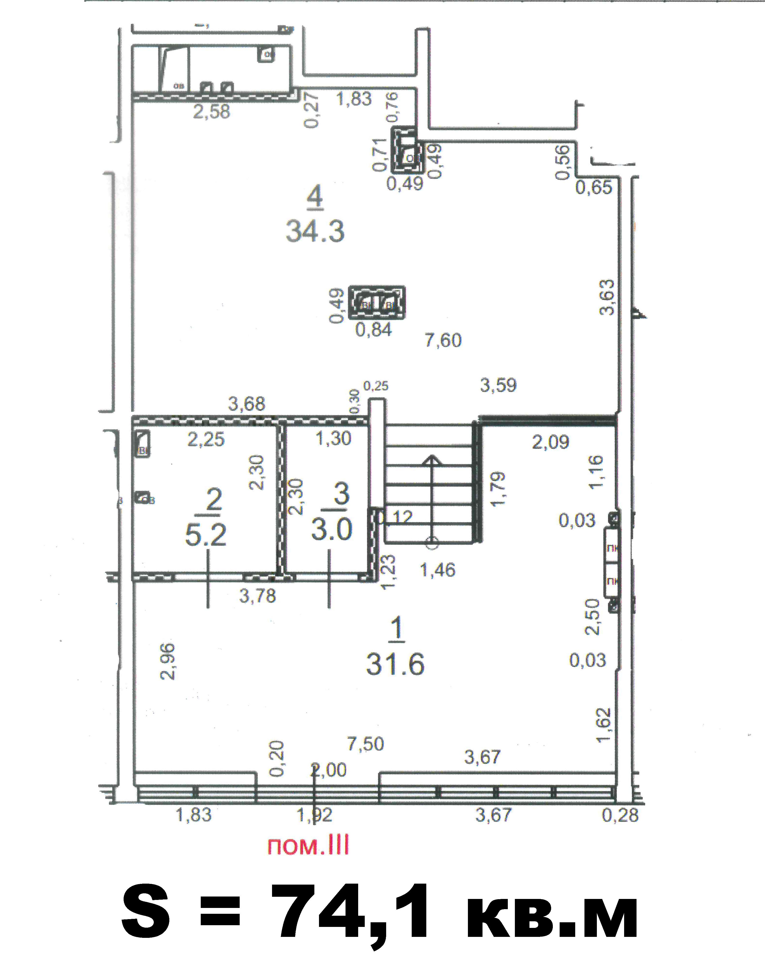
Помещение 74 м2, 1/25 этаж,
Северная улица, д.5к1

216 125 руб./мес.

  • Москва, Северная улица, д.5к1

Основные характеристики

  • Этаж 1 этаж 25-этажного дома
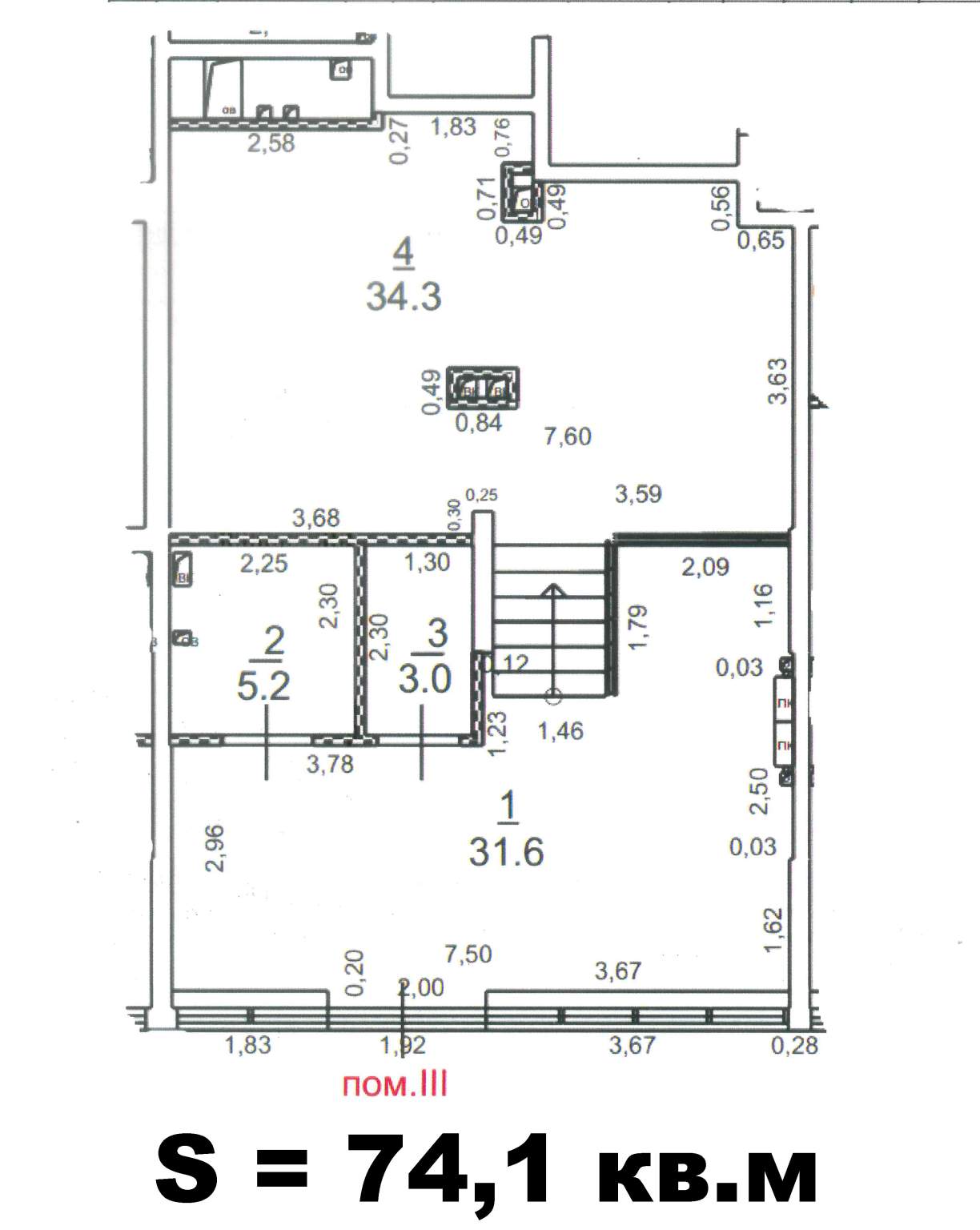
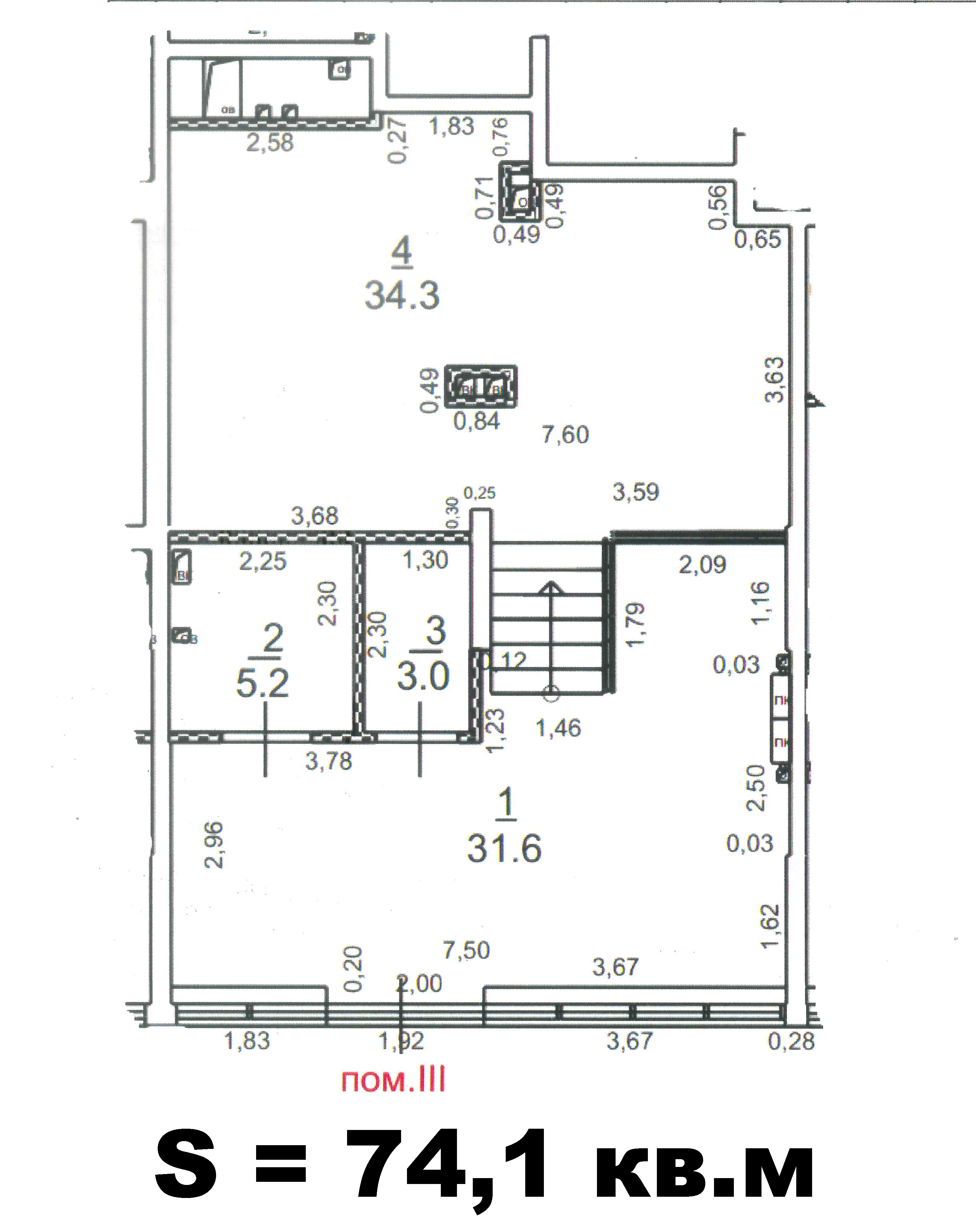
  • Общая площадь 74.1 м²
  • Назначение помещения помещение свободного назначения

Дополнительная информация

  • Предоплата 100 %
  • Источник через агента
  • Залог да
  • Ремонт да
  • Вид из окон во двор
  • Высота потолков, м 4.5

Инфраструктура

Описание

Аренда коммерческого помещения в ЖК «Одинбург», корпус «Луч 4» (Одинцово, ул. Северная,5к1) О комплексе: «Одинбург» — масштабный проект AFI Development в Одинцово, строящийся по принципу «город в городе». На территории 33 га появится 450 тыс. кв.м жилья и социальных объектов. Комплекс включает 11 монолитных корпусов высотой от 16 до 25 этажей. В двух очередях планируется поселить более 24 000 человек, поэтому коммерческие площади на первой линии будут востребованы. Локация: корпус «Луч 4» расположен вдоль улицы Северная — главной транспортной артерии района. Рядом находятся остановки автобусов №339 и 461, а также МЦД 1 «Одинцово» (15 минут). До МКАД — 7 минут на автомобиле. Предлагаемое помещение: Площадь: 74,1 кв.м. Высота потолков: 4,5 м. Витринные окна и отдельные входы на фасад. Центральные коммуникации: отопление, водоснабжение, канализация и вентиляция. Черновая отделка («бетон») — инженерные сети заведены, финальная мощность электропитания будет увеличена. Преимущества первой линии: Высокий автомобильный и пешеходный трафик на ул. Северной. Отличная видимость с дороги, возможность наружной рекламы. Парковка и остановка общественного транспорта у входа. Ликвидные площади, востребованные для кафе, пекарен, аптек, салонов красоты, пунктов выдачи маркетплейсов и офисов. Условия аренды: Прямая аренда от собственника. Долгосрочный договор. Возможны арендные каникулы. Обсуждение индивидуальных условий. Сочетание крупного жилого квартала (24 000 жителей), собственной инфраструктуры и первой линии вдоль Северной улицы делает эти помещения оптимальными для ритейла и услуг. Идеально под: кофейню, пекарню, аптеку, салон красоты, стоматологию, офис продаж, пункт выдачи маркетплейсов, магазин или услуги. [#7959864#]

Актуальные предложения

216 125 руб./мес. Помещение 74 м2, 1/25 этаж, Северная улица, д.5к1
Позвоните мне