Все строящиеся дома и готовые новостройки
Москвы и Московской области
Москва и МО

Помещение 2391 м2, 1/1 этаж,
Бердское шоссе, д.зд4/7

2 032 520 руб./мес.

  • Москва, Бердское шоссе, д.зд4/7

Основные характеристики

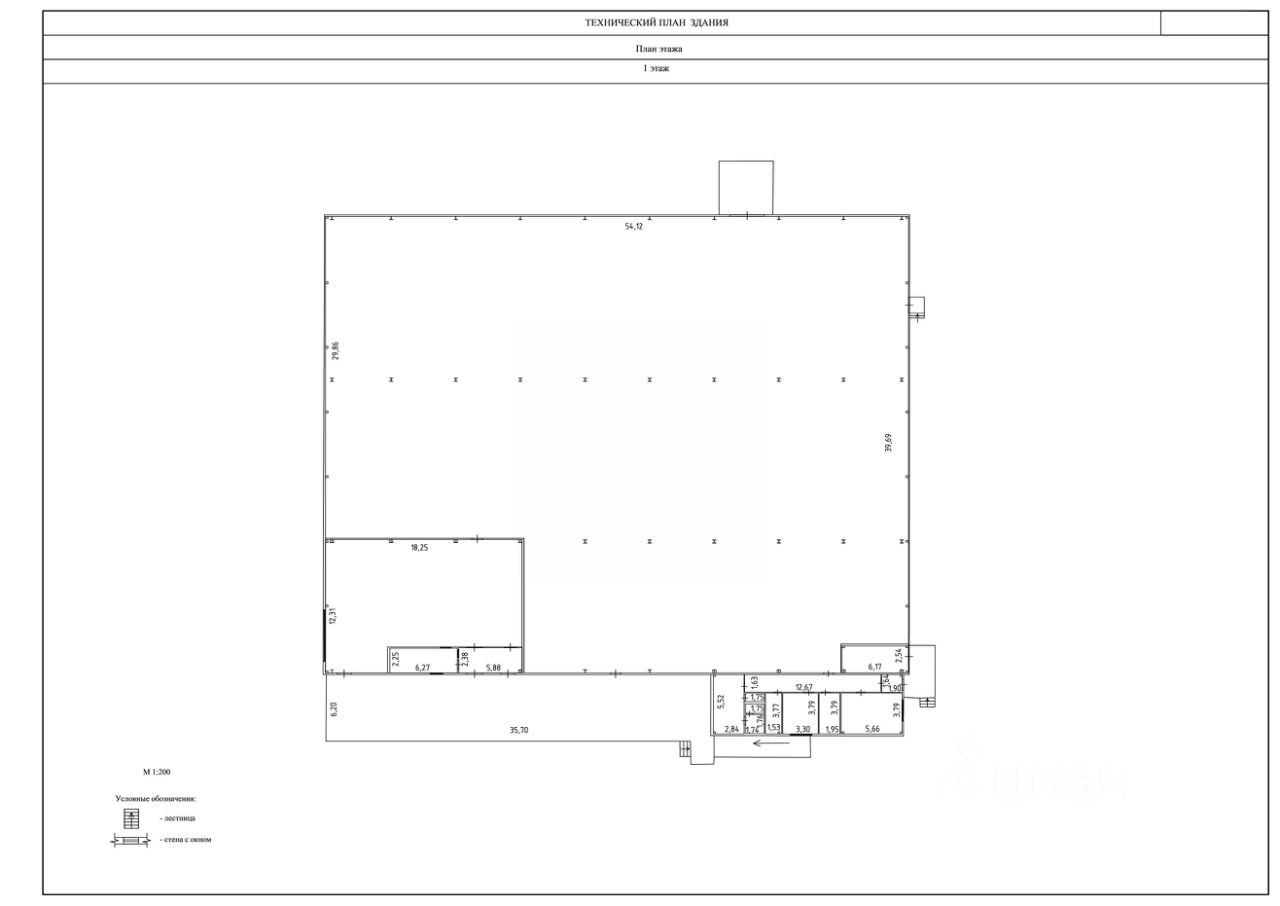
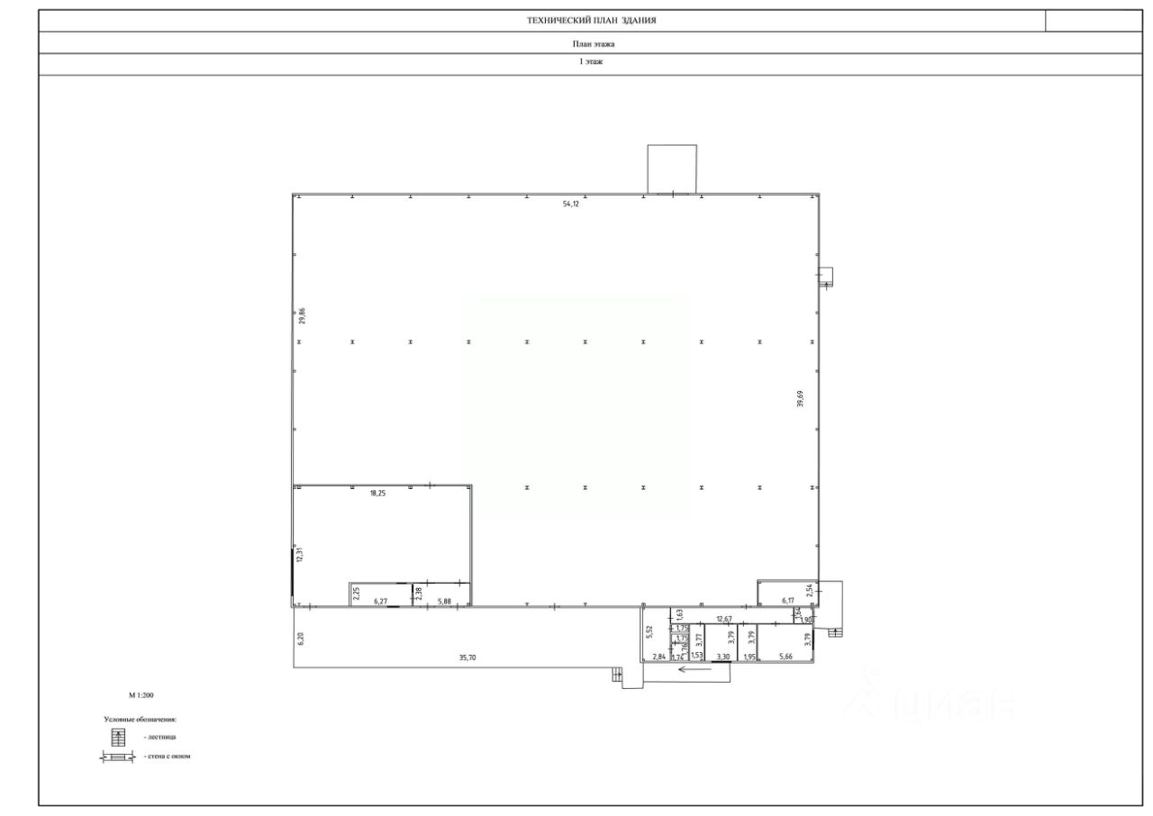
  • Этаж 1 этаж 1-этажного дома
  • Общая площадь 2391.2 м²
  • Назначение помещения складское помещение

Дополнительная информация

  • Предоплата 100 %
  • Источник напрямую
  • Залог да
  • Ремонт да
  • Наличие интернета да
  • Высота потолков, м 8.5

Инфраструктура

Описание

Предлагаем в аренду современное торгово-складское здание в Первомайском районе Новосибирска. Идеальное решение для крупного магазина, производственного предприятия или регионального распределительного центра. Кратко о здании Адрес: г. Новосибирск, Первомайский район, шоссе Бердское, д. 4/7. Общая площадь: 2391,2 м2. Этажность: 1 этаж. Статус: нежилое здание, полностью готово к эксплуатации. Год постройки: 2024. Продуманная планировка позволяет легко адаптировать пространство под ваш бизнес: просторный торгововыставочный зал — отлично подойдёт для розницы; большой склад - идеален для оптовой торговли и дистрибуции; административные и бытовые помещения (кабинет, комната приёма пищи, гардероб, санузлы, помещение для охраны) — удобно для персонала и управления производственными процессами; Локация: расположение вдоль Бердского шоссе обеспечивает удобный подъезд для грузового и легкового транспорта; близость к основным магистралям и железнодорожному узлу позволит легко организовать поставки; Для кого подойдёт: крупные розничные магазины и гипермаркеты; складские и логистические комплексы; производственные предприятия среднего масштаба; торговосервисные центры и распределительные центры. Что уже готово для вашего бизнеса все коммуникации подключены и работают (электричество, вода, газ, канализация); соблюдены современные нормы пожарной безопасности; объект спроектирован с учётом требований к коммерческой недвижимости — не требует капремонта или переделок; обеспечена доступность для маломобильных групп населения. Инфраструктура для клиентов и сотрудников обустроенная парковка на 33 места (в том числе 4 места для маломобильных граждан); удобный подъезд и размещение транспорта. Начните бизнес без лишних хлопот Заезжайте и запускайте проект — не тратьте время на ремонт и подключение сетей! Не упустите шанс арендовать современное торговое здание в перспективной локации — звоните прямо сейчас! [#8085839#]

Актуальные предложения

2 032 520 руб./мес. Помещение 2391 м2, 1/1 этаж, Бердское шоссе, д.зд4/7
Позвоните мне