Все строящиеся дома и готовые новостройки
Москвы и Московской области
Москва и МО

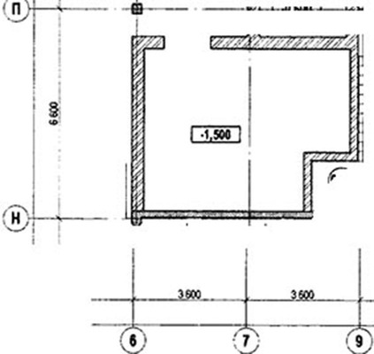
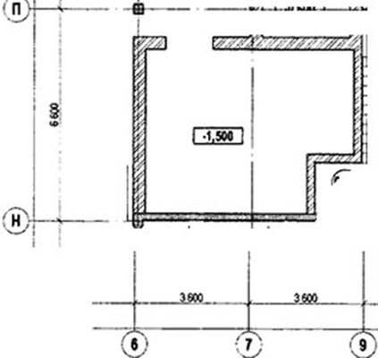
Помещение 30 м2,
Гурьянова, д. 30

36 120 руб./мес.

  • Москва г, Гурьянова ул, д. 30

Основные характеристики

  • Общая площадь 30.1 м²
  • Назначение помещения коммерческая

Дополнительная информация

  • Источник через агента

Инфраструктура

Описание

Помещение под небольшой склад площадью 30,1 м2, на -1 этаже
Помещение расположено в комплексе "Серф-Плаза". Современные инженерные системы: приточно-вытяжная вентиляция; центральное отопление.... Пожарная сигнализация.
Комплекс Серф плаза расположен по адресу Гурьянова 30 на первой линии, здание работает с 9 до 23 ч., открыто ежедневно. В центре жилого района Печатники (ЮВАО).

Актуальные предложения

36 120 руб./мес. Помещение 30 м2, Гурьянова, д. 30
Позвоните мне