Все строящиеся дома и готовые новостройки
Москвы и Московской области
Москва и МО

Помещение 41 м2, 1/3 этаж,
Павелецкая площадь, д.1Астр1

700 000 руб./мес.

  • Москва, Павелецкая площадь, д.1Астр1

Основные характеристики

  • Этаж 1 этаж 3-этажного дома
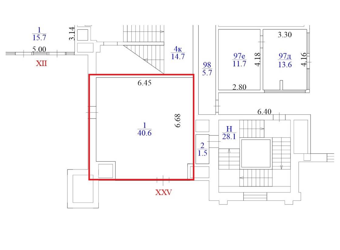
  • Общая площадь 40.6 м²
  • Назначение помещения торговое помещение

Дополнительная информация

  • Предоплата 100 %
  • Источник напрямую
  • Ремонт да
  • Вид из окон во двор и на улицу
  • Высота потолков, м 3

Инфраструктура

Описание

Сдам в аренду помещение в торговом комплексе площадью 40.6 кв.м, в субаренду, на любой срок с предоплатой за 1 месяц, с возможностью арендных каникул, юридический адрес не предоставляется. Помещение располагается в 3-этажном административном здании класса A в 1 мин. пешком от м.Павелецкая, район города - Замоскворечье. Помещение располагается на 1 этаже здания. Возможное назначение помещения - магазин, высота потолков 3 м, внутри типовой ремонт, на полу плитка, одна мокрая точка, тип окон - витринные, окна выходят окна во двор и на улицу, здание на первой линии, здание функционирует круглосуточно, участок находится в аренде. Внутри центральное кондиционирование, вентиляция - приточная, центральное отопление. Доступ в здание свободный, доступ в здание круглосуточный. Вход в помещение - общий с улицы. [#8095907#]

Актуальные предложения

700 000 руб./мес. Помещение 41 м2, 1/3 этаж, Павелецкая площадь, д.1Астр1
Позвоните мне