Все строящиеся дома и готовые новостройки
Москвы и Московской области
Москва и МО

Помещение 52 м2, 1/2 этаж,
Самокатная улица, д.4стр1

115 875 руб./мес.

  • Москва, Самокатная улица, д.4стр1

Основные характеристики

  • Этаж 1 этаж 2-этажного дома
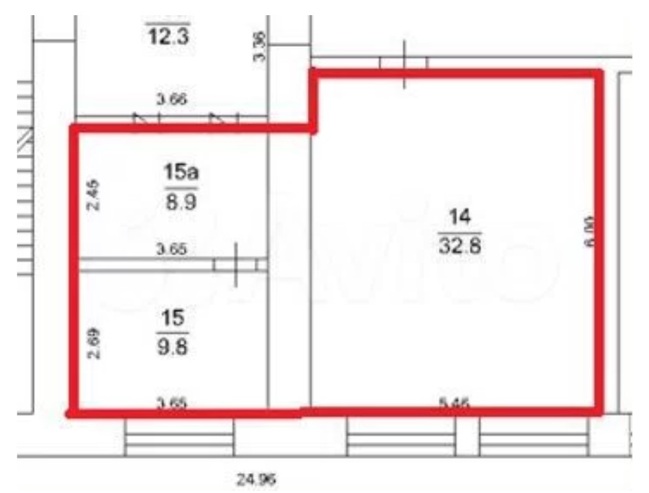
  • Общая площадь 51.5 м²
  • Назначение помещения офисное помещение

Дополнительная информация

  • Источник напрямую
  • Ремонт да
  • Покрытие пола ламинат
  • Высота потолков, м 4.5

Инфраструктура

Описание

СОБСТВЕННИК предлагает в аренду представительский офисный блок на территории бывшего завода Кристалл. Адрес: Самокатная улица, 4с1. Площадь 51,5 кв. м. Высота потолков 4,50 м. Большие окна, презентабельный вход, свой с/у, вход в офис - со стороны Самокатной улицы. Красивая охраняемая территория с собственной огромной парковкой. В летний сезон в зоне фонтана проводятся различные развлекательные мероприятия. Круглосуточный доступ. Удобная транспортная доступность, вблизи от остановок наземного пассажирского транспорта, офис находится вблизи от ТТК и Золоторожской набережной. Ставка 27 000 руб. за кв м. в год. Отдельно оплачивается эксплуатационный сбор и коммунальные услуги. НДС включен в ставку. Нас могут искать, как: помещение под офис, помещение под коворкинг, помещение под фотостудию, помещение под компанию, офис у метро Курская, офис у метро Площадь Ильича, коворкинг у метро Курская, коворкинг у метро Площадь Ильича. [#8116607#]

Актуальные предложения

115 875 руб./мес. Помещение 52 м2, 1/2 этаж, Самокатная улица, д.4стр1
Позвоните мне