Все строящиеся дома и готовые новостройки
Москвы и Московской области
Москва и МО

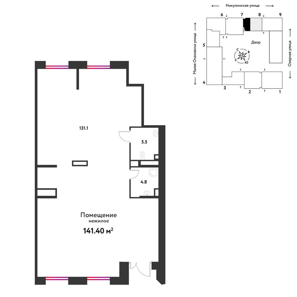
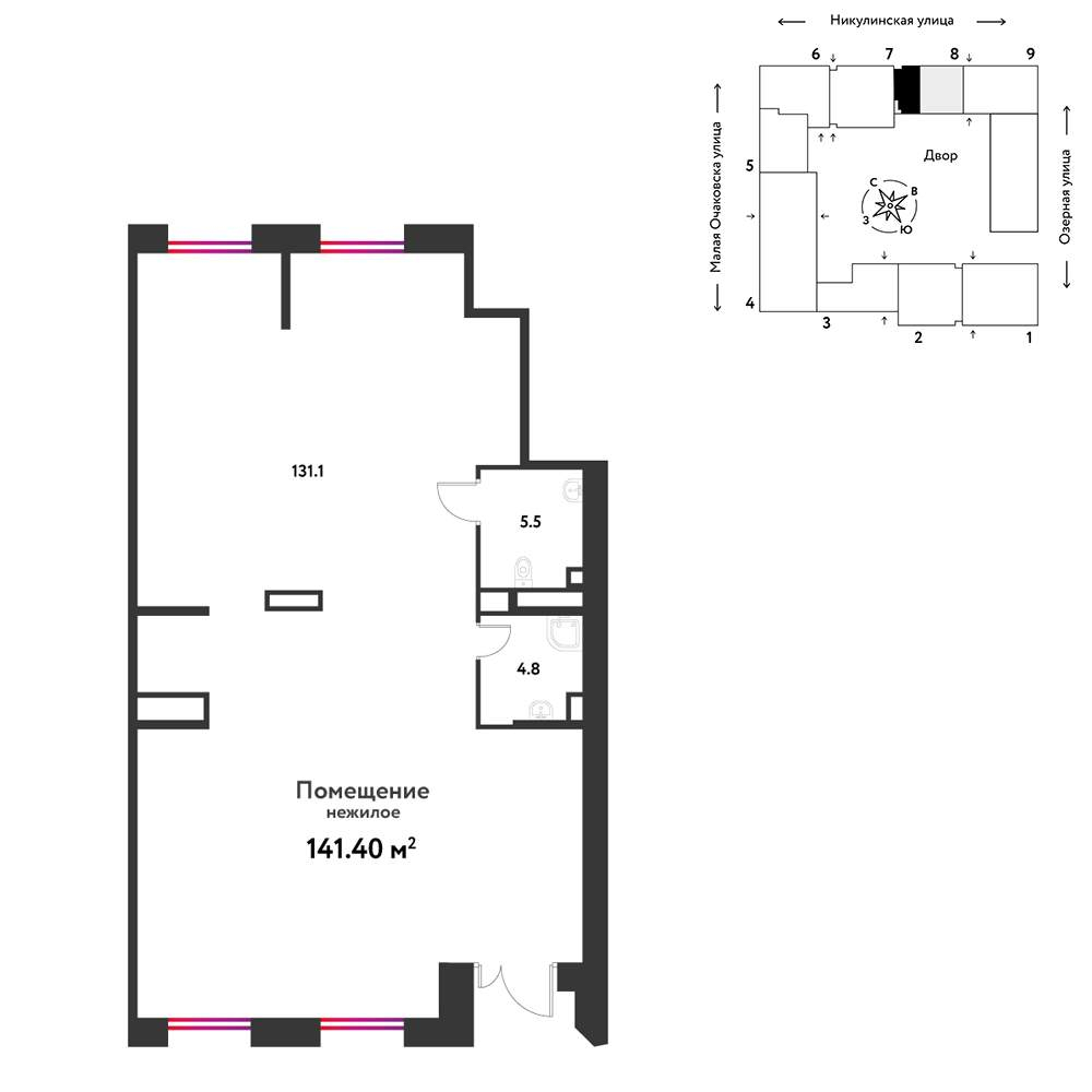
Помещение 141 м2, 1/30 этаж,
Озёрная улица, влд42

86 240 000 руб.

609 901 руб./м²
  • Москва, Озёрная улица, влд42

Основные характеристики

  • Этаж 1 этаж 30-этажного дома
  • Общая площадь 141.4 м²
  • Назначение помещения помещение свободного назначения

Дополнительная информация

  • Источник напрямую
  • Ремонт да
  • Высота потолков, м 3

Инфраструктура

Описание

Продажа ПСН площадью 141.4 кв. м в 7 мин. пешком от м. Озёрная. Помещение располагается в 30-этажном здании, находится на 1 этаже здания. Возможное назначение - коммерция, высота потолков 3 м, внутри типовой ремонт, год постройки 2025, застройщик здания - ГК Страна Девелопмент. Вход - общий с улицы. Парковка автомобилей - наземная, парковка на 423 машиномест, выделены места под гостевые автомобили в количестве шт, парковка предоставляется бесплатно. [#8118701#]

Актуальные предложения

86 240 000 руб. 609 901 руб./м² Помещение 141 м2, 1/30 этаж, Озёрная улица, влд42
Позвоните мне