Все строящиеся дома и готовые новостройки
Москвы и Московской области
Москва и МО

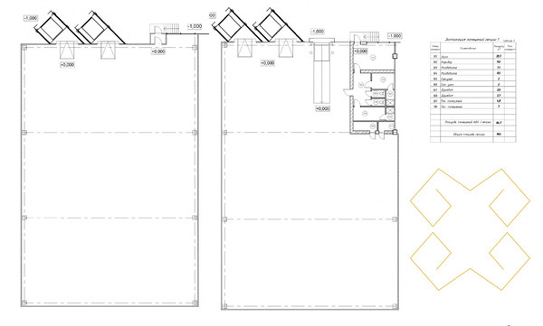
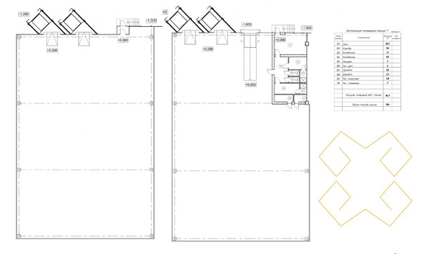
Помещение 1400 м2, 1/1 этаж,
Домодедовское, д. 61

196 000 000 руб.

140 000 руб./м²
  • Московская обл, Покров с, Домодедовское ш, д. 61

Основные характеристики

  • Этаж 1 этаж 1-этажного дома
  • Общая площадь 1400 м²
  • Назначение помещения коммерческая

Дополнительная информация

  • Источник через агента
  • Высота потолков, м 8

Инфраструктура

Описание

Арт. 132864197 Расположение: МО, с. Покров , домодедовское шоссе д.61Симферопольское шоссе (М2) 19 км от МКАД.
Остановка общественного транспорта 5 мин. пешком. Ж/д станция(МЦД) 20 минут, на транспорте. От станции метро Аннино 25 минут на транспорте.
Новый производственно-складской комплекс Лайт Индастриал, light industrial, абсолютно автономный блок, площадь 1400 м2., возможно приобрести большую площадь. Возможно использование для производства и хранения. Стоимость: 140 000 р/м2/, с НДС, индивидуальный подход к каждому клиенту!
ХАРАКТЕРИСТИКИ ПОМЕЩЕНИЙ: Рабочая высота 8 м Шаг колон 12 х 24 Полы антипыль Нагрузка на пол 6 т./ кв. м. Уровень пола 1,1 м Усиленная кровля - Технониколь (возможность установки климатического и вентиляционного оборудования на кровле) Доковые ворота - Hоrmann c герметизаторами и уравнительными платформами. ИНЖЕНЕРНЫЕ И ИНФРАСТРУКТУРНЫЕ РЕШЕНИЯ: Подключение электрической мощности Возможность установки климатического оборудования для мультитемпературного склада Система водоотведения увеличенного диаметра (d600) и локальные очистные сооружения Возможность подключения газа Техническая возможность дооснащения дополнительными воротами, нулевыми воротами и внешним пандусом Возможность организации встроенных помещений административно-бытового назначения. Парковка для легковых и грузовых автомобилей. БЦ на территории с офисами и кафе-столовой. Склад готов для новых резидентов!
Купить склад, склад, производство, купить помещение, купить промышленное помещение, промзоны, промышленные парки, помещение для производства, купить помещение свободного назначения, light industriаl, лайт индастриал, пром парк, промпарки, склад в Коледено, купить склад в Подольске, купить склад в Домодедово, склад А класса

Актуальные предложения

196 000 000 руб. 140 000 руб./м² Помещение 1400 м2, 1/1 этаж, Домодедовское, д. 61
Позвоните мне