Все строящиеся дома и готовые новостройки
Москвы и Московской области
Москва и МО

Помещение 251 м2, 1/17 этаж,
6-й Новоподмосковный, д. 3

68 000 000 руб.

271 457 руб./м²
  • Москва г, 6-й Новоподмосковный пер, д. 3

Основные характеристики

  • Этаж 1 этаж 17-этажного дома
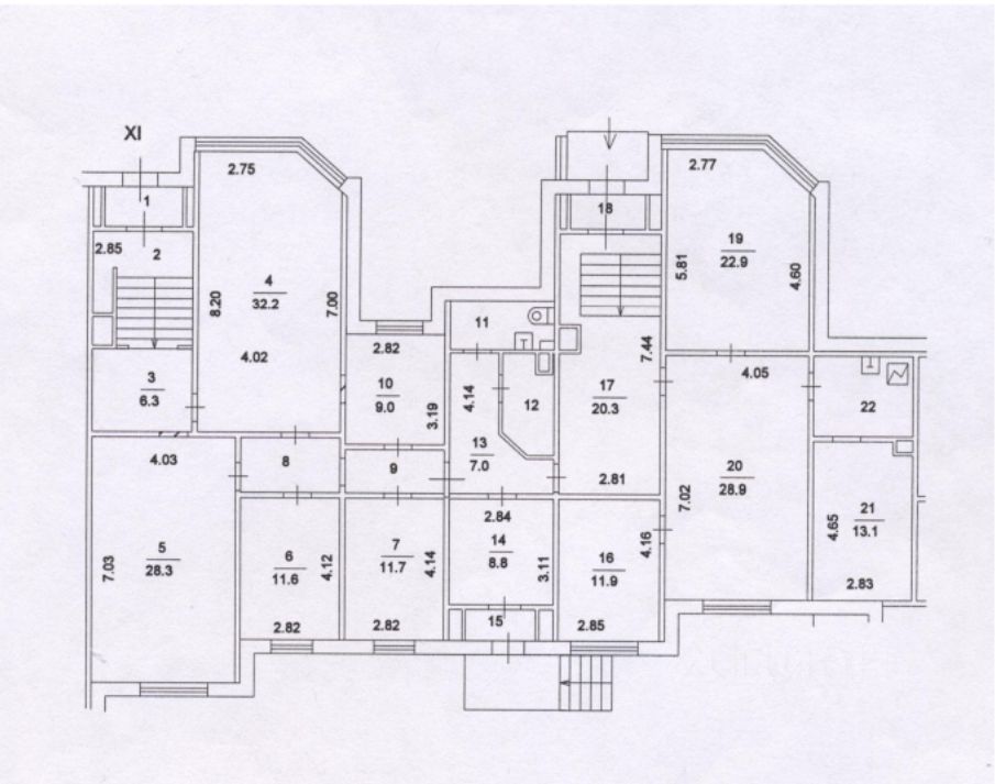
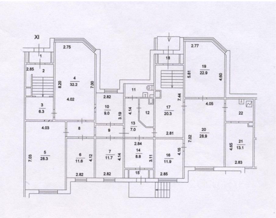
  • Общая площадь 250.5 м²
  • Назначение помещения офисное помещение

Дополнительная информация

  • Источник через агента
  • Ремонт да
  • Наличие интернета да
  • Вид из окон во двор и на улицу
  • Высота потолков, м 2.7

Инфраструктура

Описание

Продается отличный офис 250,5 м2 у метро Войковская! Идеально подходит для учебного центра, образовательной организации или другого бизнеса, требующего просторных помещений. Есть надежные арендаторы! Характеристики: - Площадь: 250,5 м2 - Этаж: 1-й, отдельный вход - Высота потолков: 2,64 м - Класс здания: B - Ремонт: косметический - Вентиляция: естественная - Кондиционирование: местное - Отопление: центральное - Сигнализация: установлена - Санузлы: 3 - Транспортная доступность: 12 минут пешком до метро Войковская, рядом остановки общественного транспорта. Преимущества: - Просторное помещение, легко адаптируемое под различные нужды. - Отличный вариант для учебных заведений благодаря удобному расположению и планировке. - Возможность приобрести готовый арендный бизнес. - Развитая инфраструктура района. Звоните прямо сейчас, чтобы узнать подробности и договориться о просмотре! [#8139158#]

Актуальные предложения

68 000 000 руб. 271 457 руб./м² Помещение 251 м2, 1/17 этаж, 6-й Новоподмосковный, д. 3
Позвоните мне