Все строящиеся дома и готовые новостройки
Москвы и Московской области
Москва и МО

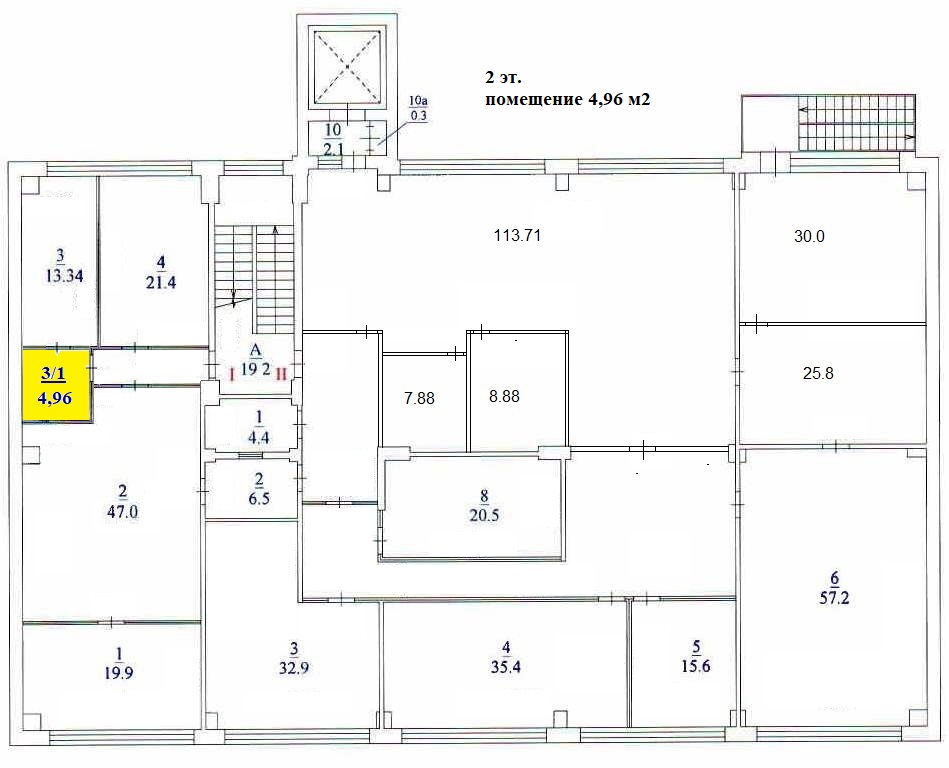
Помещение 5 м2, 2/5 этаж,
Алтуфьевское, д. 13к5

12 000 руб./мес.

  • Москва г, Алтуфьевское ш, д. 13к5

Основные характеристики

  • Этаж 2 этаж 5-этажного дома
  • Общая площадь 4.96 м²
  • Назначение помещения офисное помещение

Дополнительная информация

  • Предоплата 100 %
  • Источник напрямую
  • Залог да
  • Ремонт да
  • Наличие интернета да
  • Вид из окон во двор
  • Покрытие пола ковролин
  • Наличие лифта да
  • Высота потолков, м 3

Инфраструктура

Описание

Помещение, площадью 4,96 м2, на 2 этаже 5-этажного бизнес-центра класса B, в 15 мин. пешком от м. Окружная, район города - Отрадное. Номер налоговой объекта - 15, предоставляется юридический адрес. Высота потолков: 3 м. Помещение предоставляется в прямую аренду, срок аренды - любой, с предоплатой за 1 месяц. Включено в ставку: коммунальные платежи, эксплуатационные расходы. Минимальный срок аренды 11 мес. Помещение со стандартной отделкой, комнат в аренду - 1, внутри кабинетная планировка, на полу ковролин. Помещение расположено в Бизнес-центре "Pilot House (Пайлот Хаус)", общая площадь здания 2904 м2, располагается на участке 2203 га, участок находится в аренде, здание полностью функционирует, обслуживает здание управляющая компания ООО "Пилот ЛТД", доступ в здание осуществляется по пропускам, доступ в здание круглосуточный. Вход в помещение - общий с улицы. В здании есть охрана, местное кондиционирование, вентиляция - приточная, центральное отопление, гидрантная система пожаротушения. Парковка автомобилей - наземная. [#8144577#]

Актуальные предложения

12 000 руб./мес. Помещение 5 м2, 2/5 этаж, Алтуфьевское, д. 13к5
Позвоните мне