Все строящиеся дома и готовые новостройки
Москвы и Московской области
Москва и МО

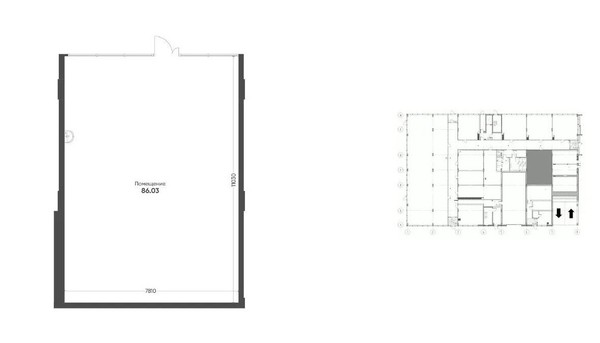
Помещение 86 м2, 1/6 этаж,
Гаврилова ул, 7к4

21 715 401 руб.

252 799 руб./м²
  • Москва, Гаврилова ул, 7к4

Основные характеристики

  • Этаж 1 этаж 6-этажного дома
  • Общая площадь 85.9 м²
  • Назначение помещения коммерческая

Дополнительная информация

  • Источник через агента
  • Наличие парковки да
  • Высота потолков, м 3.1

Инфраструктура

Описание

Арт. 133118222 Коммерческое помещение в пристижном районе города. Ново-савиновский район.Густонаселенный район, ЖК состоит из шести высоток по 20-23 этажа. Место, одновременно являющееся деловым и развлекательным кварталом города. Возможно приобретение в ипотеку по 10,9% на первый год или 14,49% на весь срок. Первый этаж. Парковка наземная и подземная. Потолки 3.1 м.Прогулочный бульвар вдоль дома.

Отличный вариант как для своего бизнеса, так и для получения пассивного дохода.
За более подробной консультацией звоните!
Рядом : Чистопольская , Мусина , Амирхана , Сибгата Хакима , Ямашева

Актуальные предложения

21 715 401 руб. 252 799 руб./м² Помещение 86 м2, 1/6 этаж, Гаврилова ул, 7к4
Позвоните мне