Все строящиеся дома и готовые новостройки
Москвы и Московской области
Москва и МО

Помещение 193 м2, 1/5 этаж,
Устье С и Ко снт

754 350 руб./мес.

  • Москва, Устье С и Ко снт

Основные характеристики

  • Этаж 1 этаж 5-этажного дома
  • Общая площадь 193 м²
  • Назначение помещения коммерческая

Дополнительная информация

  • Предоплата 100 %
  • Источник через агента
  • Наличие парковки да

Инфраструктура

Описание

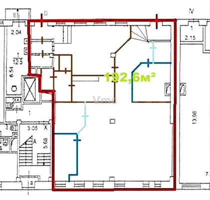
<strong>192,6 кв. м, центр, 2 входа, НДС — 754 350 ₽/мес</strong>

📐 192,6 кв. м | 1 этаж / цоколь | потолки 3,0–3,4 м | 35 кВт
🚪 2 первых входа | 2 с/у | кухня
💰 НДС включен | Коммунальные и эл-во — отдельно

🔹Открытая планировка. Типовой ремонт. Готово к въезду.

🏢 Новый реконструированный особняк класса А с сохранением исторического облика. Монолитно-кирпичный. Лифты. Приточно-вытяжная вентиляция. Кондиционирование (сплит-системы).

🔒Доступ 24/7. Видеонаблюдение. Пожаротушение. Охрана.

🚗Подземная парковка. Наземная — 2 м/м по 20 000 ₽/мес.

💰Условия:
Прямая аренда. НДС 22% включен. Депозит — 1 месяц (+коммунальные). Возможен долгосрочный договор. ИФНС №2.

📍Москва, Печатников пер., 19, стр. 2. 1
🚇 Сретенский бульвар / Тургеневская / Трубная / Сухаревская — пешком

📍Центр Москвы. Тихий переулок между Цветным бульваром и Сретенкой. Удобный выезд на Садовое кольцо.

🔹Под: офис, ПСН, медцентр, услуги, шоурум.

📞 Евгений Р.

Актуальные предложения

754 350 руб./мес. Помещение 193 м2, 1/5 этаж, Устье С и Ко снт
Позвоните мне