Все строящиеся дома и готовые новостройки
Москвы и Московской области
Москва и МО

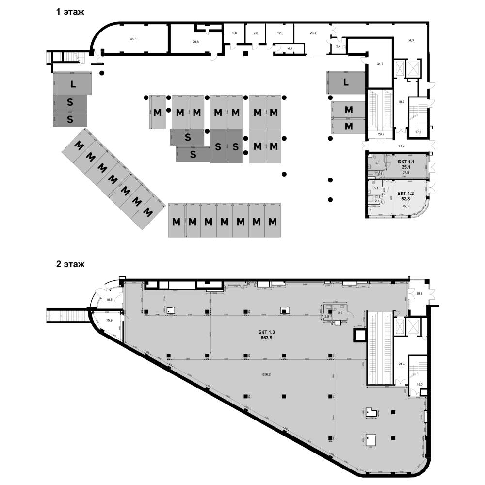
Помещение 1475 м2, 1/1 этаж,
д.1

380 093 268 руб.

257 760 руб./м²
  • Москва, д.1

Основные характеристики

  • Этаж 1 этаж 1-этажного дома
  • Общая площадь 1474.6 м²
  • Назначение помещения торговое помещение

Дополнительная информация

  • Источник напрямую
  • Ремонт да

Инфраструктура

Описание

Продажа отдельно стоящего двухэтажного здания, предназначенного для размещения торгового центра. Здание расположено в центральной части жилого комплекса «1-й Донской» - на первой линии домов, с собственной зоной входов/выходов. Локация и трафик ТЦ находится в густонаселенном районе с высокой плотностью жилой застройки. Комплекс формируется вокруг нового общественного центра, а само здание оказывается в точке естественного притяжения пешеходов и автомобилистов. Транспортная доступность 15 минут пешком до станции «Калинина» (МЦД-5) - пассажиропоток линии обеспечивает дополнительный транзитный трафик. 20 минут на автомобиле от метро Домодедовская - удобный подъезд для гостей из соседних районов. Аудитория и емкость рынка На территории ЖК будет построено пять 16-17-этажных многосекционных корпусов. Общее население жилого комплекса - более 8 000 человек. Это постоянные покупатели без необходимости привлечения трафика «с нуля» - дети, взрослые, семьи с разными уровнями дохода. Срок реализации Ввод в эксплуатацию - 1 квартал 2027 года. Это возможность войти в проект на стадии строительства и получить лучшие коммерческие условия! [#8202634#]

Актуальные предложения

380 093 268 руб. 257 760 руб./м² Помещение 1475 м2, 1/1 этаж, д.1
Позвоните мне