Все строящиеся дома и готовые новостройки
Москвы и Московской области
Москва и МО

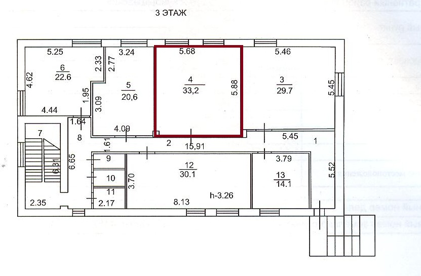
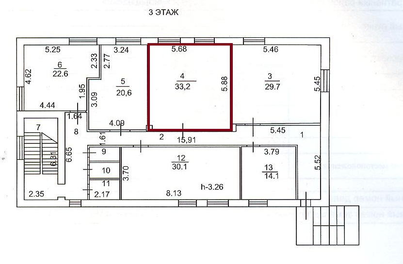
Помещение 33 м2, 3/4 этаж,
Баррикад улица, д.стр51/4

34 860 руб./мес.

  • Москва, Баррикад улица, д.стр51/4

Основные характеристики

  • Этаж 3 этаж 4-этажного дома
  • Общая площадь 33.2 м²
  • Назначение помещения офисное помещение

Дополнительная информация

  • Источник напрямую
  • Ремонт да
  • Вид из окон во двор

Инфраструктура

Описание

ДОРЕНБЕРГ ОБНОВЛЯЕТСЯ! Присоединяйтесь к новому Выставочному центру товаров и услуг для дизайна интерьера, ремонта и строительства! Сдается Идеальное место для торгового офиса, шоу-рума, магазина, выставки товаров на Арт-заводе Доренберг Характеристики: - Полезная площадью помещения 33,2 кв.м - Высокие потолки с возможностью установки стеллажей для складского хранения - Заинтересованные соседи-единомышленники - Офис в стиле "лофт" Неочевидные преимущества: Посетители: 23.000 - 29.000 человек (в месяц); Средний дневной трафик: 900 человек Большинство посетителей - покупатели смежных товаров (магазины Русклимат, ДНС, Custom kitchens, AElight, ТехАспект, WOODWORKING, ТурунгаСиб, Confirbox) Ежедневно на улице Баррикад проезжает более 16,5 тысяч автомобилей Вам будут доступны рекламные возможности на территории Арт-завода (баннеры, аудиореклама, листовки, промо-акции, коллаборации с другими резидентами) Управляющая компания на Арт-заводе Доренберг станет вашим партнером, мы заинтересованы в долгосрочном перспективном сотрудничестве и выстраиваем честные доверительные отношения Очевидные преимущества: Доступ 24/7 Частная охраняемая территория Активное строительство жилых домой поблизости СОБСТВЕННИК, БЕЗ КОМИССИИ В условиях глобальной застройки района — перспективное расположение Также у нас на территории Арт-Завода «Доренберг» есть доступные помещения с другой площадью, звоните, расскажем подробнее Немного о нас: Арт-завод «Доренберг» — место для тех, кто горит идеями и желанием развивать свои проекты в атмосфере сотрудничества и взаимной поддержки Расположен в 5-х минутах от центра города (скв.Кирова) С возможностью работать и отдыхать (бары, кофейни) на территории У нас уютная дружественная атмосфера Есть свой чат резидентов для общения и коллабораций Мы с радостью разместим вашу компанию на нашем сайте и в социальных сетях Звоните! С радостью ответим на любые вопросы. Оперативно организуем просмотр Будем рады видеть вас своими резидентами! [#8215555#]

Актуальные предложения

34 860 руб./мес. Помещение 33 м2, 3/4 этаж, Баррикад улица, д.стр51/4
Позвоните мне