Дом 118 м2, 6 сот, д.319
17 500 000 руб.
148 810 руб./м²- Москва, д.319
Основные характеристики
- Срок сдачи 2024 г.
- Комнат 4
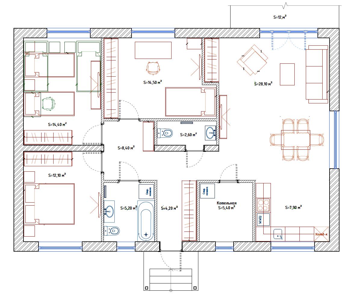
- Общая площадь 117.6 м²
Дополнительная информация
- Кол-во этажей 1
- Источник напрямую
- ФЗ-214 нет
- Ремонт да
Инфраструктура
От застройщика! Новый одноэтажный коттедж 117,6 кв.м с отделкой White box на участке 6 соток в КП «Новая Дятловка». Отделка White box: В доме установлены межкомнатные стены; выполнена разводка всех коммуникаций; натяжной потолок; оборудована котельная под ключ. Планировка по проекту: 1 этаж Просторная кухня-гостиная 36 кв.м с окнами на три стороны света и панорамной дверью на крытую террасу 12 кв.м; 3 изолированные комнаты 12/14/14 кв.м, ванная комната, гостевой с/у, бойлерная, гардеробная. Высокие потолки - 3 метра. Коммуникации в доме: Электричество, магистральный газ, автономная канализация, вода – индивидуальная скважина, отопление от газового котла. Земельный участок: 6 соток, ровный правильной формы. Назначение - индивидуальное жилищное строительство (ИЖС), прописка – д. Дятловка, г.о. Балашиха Вы можете прикрепиться к садику, школе, поликлинике. Коттедж построен из высококачественных материалов с соблюдением всех технологий: - Фундамент: Свайный с ростверком (монолитный с армированием) с заглублением 3 м; - Стены: Газобетонный блок Бонолит, толщина внешних стен 400мм; - Фасад: Штукатурка, покраска, Цоколь утеплен и облицован термопанелями, выполнена отмостка; - Кровля: Четырехскатная из метало-черепицы с установкой снегозадержателей и водосточной системы; - Окна: Металло-пластиковые двухкамерные стеклопакеты с поворотно-откидным механизмом; - Крыльцо с навесом. - Терраса с навесом; - Входная металлическая утепленная дверь; - Забор - металлический штакетник высотой 2м. О поселке: Асфальтированные дороги. Общее освещение. Закрытая территория. В поселке оборудована детско-спортивная площадка с воркаутом и зоной отдыха. Чистый и свежий воздух, удаленность от трасс и многоэтажек, тишина и уединение с природой и при этом оптимальное расстояние до города - всего 3 км от мкр. Железнодорожный и 17 км от МКАД. Ближайшие станции метро: Новокосино, Железнодорожная, Некрасовка. Инфраструктура: Все поблизости: Детский сад, школа, амбулатория, парк, банк, почта, спортивный комплекс с плавательным бассейном в Агрогородке - 10 мин на авто/автобусе. В д.Дятловка расположена остановка школьного автобуса, где утром забирает, а после уроков привозит ребят школьный автобус. В шаговой доступности Вкус Вилл, Пятерочка, пункты Яндекс/Озон/Валдбериз, аптека и тд. ТЦ, рестораны, кафе, магазины и другая социально-бытовая инфраструктура расположена в городе Железнодорожном - 15 минут на авто. Как добраться: От коттеджного поселка до остановки автобуса 10 минут пешком. Автобус №26 идет до ж/д станции "Черное"- 10 минут, до ж/д станции "Железнодорожная" - 20 минут. Открыт участок автомобильной трассы М12 Москва-Ногинск, легкое метро МЦД-4 (от Апрелевки до Железнодорожного). Продажа от застройщика. Вся стоимость в договор. Одобрение ипотеки и сопровождение сделки - бесплатно. Индивидуальная рассрочка до 12 месяцев. Скидка 3% для многодетных семей и участников СВО! Добро пожаловать в Новую Дятловку! [#7807013#]
Актуальные предложения