Все строящиеся дома и готовые новостройки
Москвы и Московской области
Москва и МО

Участок 1 сот,

250 000 руб.

250 000 руб./сот.
  • Москва

Основные характеристики

  • Общая площадь 1 сот

Дополнительная информация

  • Тип участка ижс
  • Источник напрямую

Инфраструктура

Описание

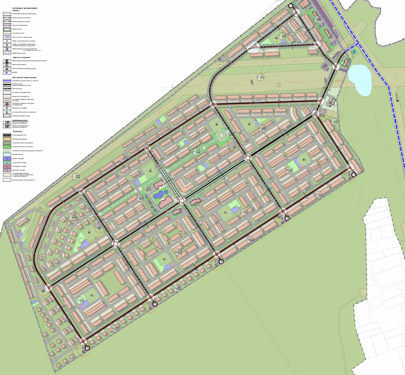
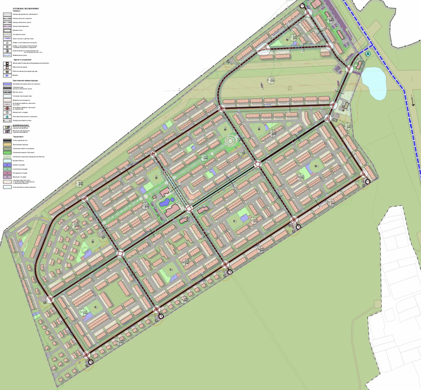
Инвестиционно-привлекательный актив под застройку таунхаусами вблизи Уфы Предлагаем к приобретению земельный массив (участок) с кадастровым номером 02:26:160101:434 в динамично развивающемся направлении Уфа - с. Старый Юрмаш. Объект: Земельный участок, категория: земли населенных пунктов. Вид разрешенного использования допускает строительство таунхаусов (блокированных жилых домов), индивидуальных жилых домов. Локация: 25 км от города по Восточному выезду. Высокий трафик и хорошая экология. Планируется активное развитие окружающей территории. Строительство централизованных инженерных сетей. Условия: Право собственности оформлено, все документы готовы к регистрации сделки. Технические условия на подключение к сетям (уточняются). Отсутствие обременений и споров по границам (межевание проведено). Рассмотрим различные формы оплаты. Подходит для реализации масштабного проекта малоэтажного строительства. Предложение ограничено. [#8101116#]

Актуальные предложения

250 000 руб. 250 000 руб./сот. Участок 1 сот,
Позвоните мне